Hier finden sie uns

Katzenfurter Verein für Heimatgeschichte e.V.
Chattenstr. 5

Katzenfurt

35630 Ehringshausen
Telefon: +49 6449 6123

Heimatarchiv und Archäologische Sammlung 
im Bürgerhof, Brückenstraße 31 (direkt am Bahnhof Katzenfurt) sind

mittwochs
von 17:30 bis 19 Uhr geöffnet
- Eintritt frei -

 

Dieser Termin paßt Ihnen nicht?

Kein Problem: Rufen Sie uns bitte an unter 06449 506 oder schreiben Sie uns eine E-Mail (info@katzenfurt-online.de) und stimmen Sie einen anderen Termin mit uns ab!

Das neue

Katzenfurter Heft Nr. 14

sowie die vorhergehenden Hefte und das Buch "Katzewädder Platt" können Sie bei der Elch-Apotheke in Katzenfurt erwerben.
 

Oder bestellen Sie einfach telefonisch unter 06449/506 oder per Email:
info@katzenfurt-online.de. Wir senden Ihnen dann das Heft zum Preis von 7 € zuzügl. Versandpauschale zu.



Sie sind der

Besucher auf dieser Seite!

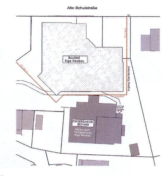
Grafiken und Pläne des neuen Katzenfurter Kindergartens

Damit Sie bereits vor Baubeginn eine Vorstellung von dem neu in Katzenfurt zu bauenden Kindergarten bekommen, können wir Ihnen heute einige Grafiken und Zahlen anbieten.

Wir danken dem Architekten, Herrn Steffen Bergmann, für seine freundliche Genehmigung.